DBDA Studio
Zpět na projekty

Rodinný dům Břevnov

RD Břevnov - hlavní náhled projektu

„Nový dům by měl navazovat, nikoli soupeřit.“

Návrh domu vychází z dialogu s původní vilovou zástavbou a hledá současný výraz bez zbytečné dominance. Kompaktní hmota je doplněna jasně čitelnou nástavbou, která přináší světlo a nový horizont bydlení.

Břevnov 2
Břevnov 3

Dům pracuje s jemným odstupem od ulice a otevírá se do klidné zahrady. Architektura je střídmá, ale sebevědomá.

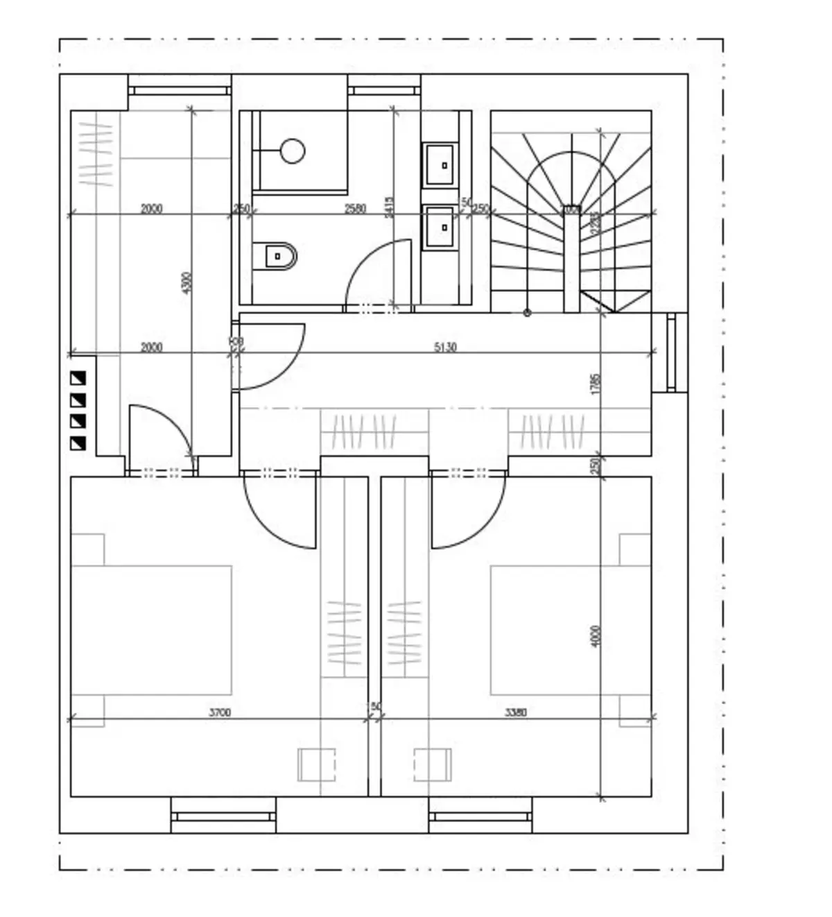
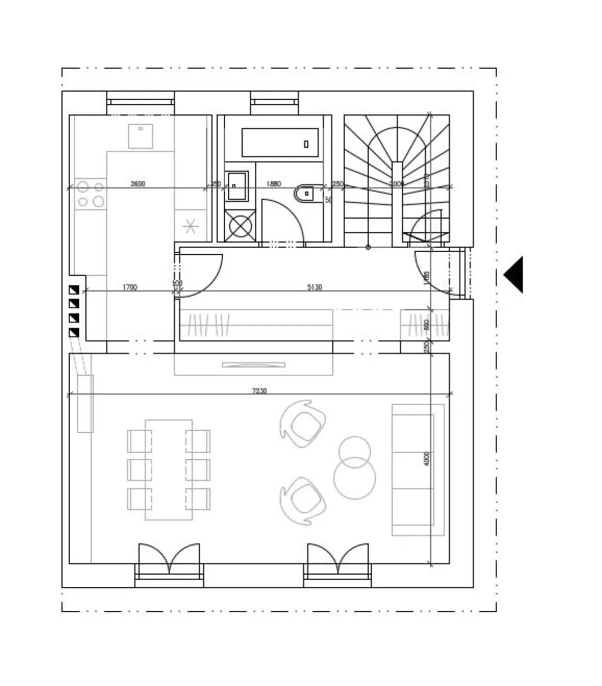
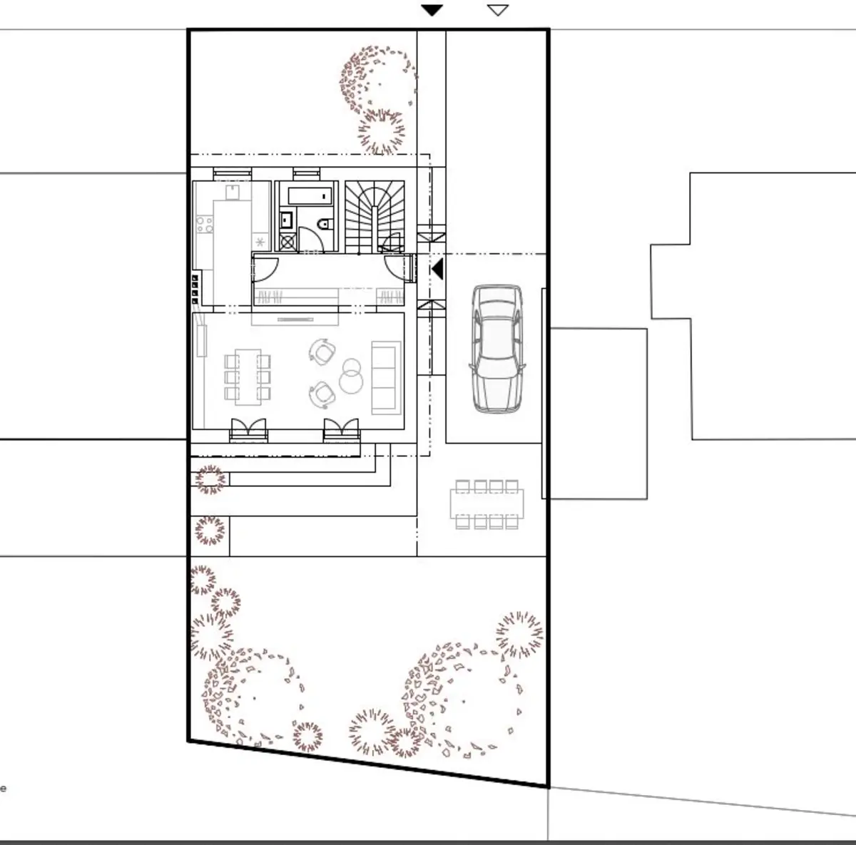
Situace Půdorys 1NP Půdorys 2NP Půdorys podkroví