DBDA Studio
Zpět na projekty

Dětská skupina Bohuňov

Dětská skupina Bohuňov - hlavní náhled projektu

„Architektura tu není cílem, ale rámcem pro společný život.“

Návrh dětské skupiny vychází z respektu k měřítku obce a přirozené struktuře místa. Jednoduchý objekt spolu s otevřeným prostorem vytváří čitelný celek, který slouží dětem i širší komunitě.

Bohuňov 02
Bohuňov 03

Architektura je navržena jako rámec pro každodenní pohyb, hru a setkávání. Dům i venkovní prostory jsou chápány jako jeden souvislý prostor.

Bohuňov Interiér
Bohuňov 05
Bohuňov 06

Scénáře využití

Den dětí

Den dětí

Pohled na místní hostinec v Bohuňově

Hospoda

Pohled na místní hostinec v Bohuňově

Koncert

Tradiční trhy na návsi v Bohuňově

Trhy

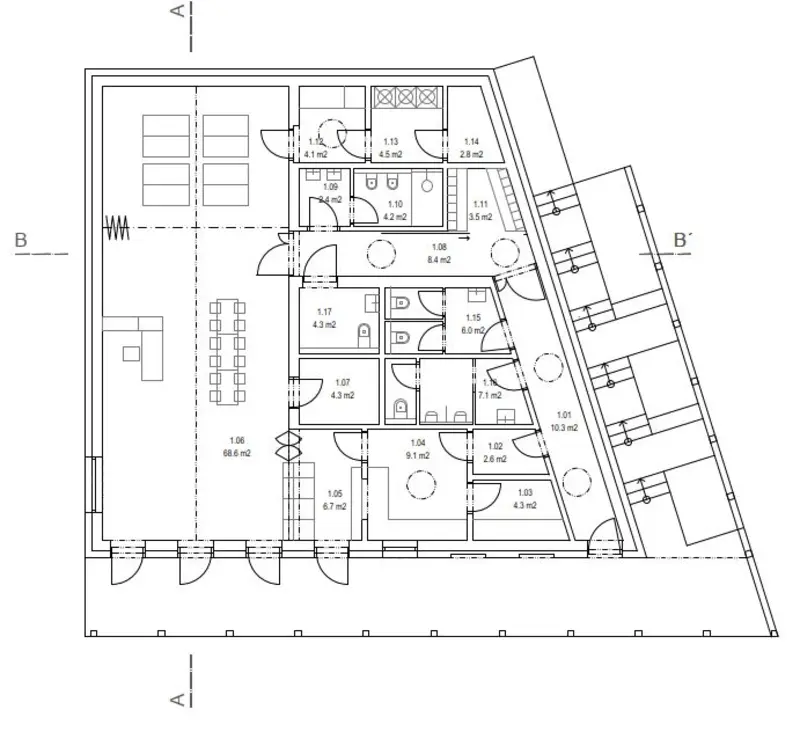
Půdorys 1NP

Půdorys 1NP

Situace

Situace