DBDA Studio
Zpět na projekty

Rodinné domy Velké Popovice

RD Velké Popovice - hlavní náhled projektu

„Snažili jsme se navrhnout dům, který je čitelný, klidný a přirozeně zapadá do svého prostředí.“

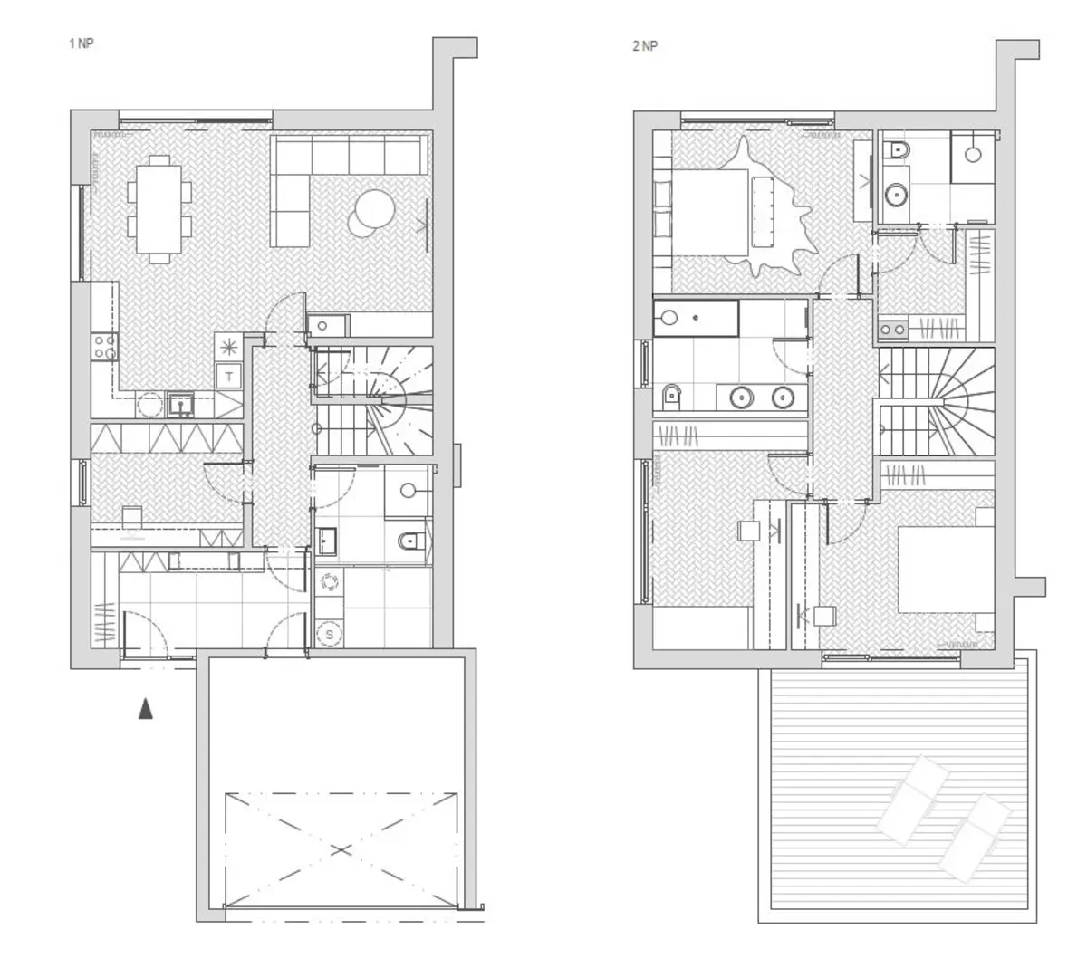
Dvojice rodinných domů je navržena jako kompaktní celek s jasně čitelným hmotovým členěním a logickým provozním uspořádáním. Kontrast obytné dvoupodlažní hmoty a nižšího objemu garáže umožňuje přirozené oddělení funkcí a zároveň vytváří měřítkově přívětivý vztah k okolní zástavbě.

Velké Popovice 2
Velké Popovice 3

Dispozice domů jsou orientovány do zahrady a pracují s přímým propojením interiéru a exteriéru. Architektura staví na střídmé materiálové paletě a důrazu na detail, světlo a dlouhodobou obyvatelnost.

Velké Popovice Ložnice Velké Popovice Obývací pokoj
Zahrada Ohniště Obývací pokoj Koupelna Dětský pokoj Půdorysy